GREELEY APARTMENTS
Greeley, CO
Design Firm | EVStudio
I was onboarded to the project during Design Development to assist the acceleration of the design schedule following Value Engineering and client review changes.
As the primary designer for the Clubhouse, I was responsible for developing the entirety of the Permit Sets, including tasks such as:
-
Life Safety Plans, Floor Plans, Reflected Ceiling Plans
-
Fire-Rated Assemblies, UL assemblies, and protective measures
-
Interior Finishes and 3D Renderings of Lounge space
-
Building Elevations and Interior Elevations
-
Building Sections and Wall Sections
-
Standard Details
-
Custom details for exterior Rinse Showers & interior Wall-Hung Seating
As the primary designer for the site structures—namely, the garages, covered Mail room, and trash enclosures—I was responsible for developing the entirety of the Permit Sets, including tasks such as:
-
Coordinating FFEs and foundation steps with external Civil Engineer
-
Ensuring all structures had direct access to the Overall Site's accessible pathway
-
Ensuring that ADA parking stalls, van-unloading spaces, and ADA garages connected to Accessible pathway
-
Ensuring parking capacity met requirements of Zoning Ordinances
-
Passive attic ventilation
-
Building Elevations and material selections
As the support role for the design of the Apartment Building and Unit Plans, I was responsible for Code Compliance and detailing, including:
-
Ensuring Demising Walls, Floor and Roof Assemblies, and Building Separation lines met IBC requirements for Fire Rating
-
Calculating passive Attic Ventilation and determining locations of mechanical penetrations through thermal envelope
-
Alterations to Unit Plans & Interior Elevations
-
Accessibility Plans per Unit Type
-
Life Safety Plans
-
Details
My contributions to this project were primarily—but not limited to—the following:
-
ACCESSIBILITY | Adjusted cabinetry, operable fixtures, and accessible paths/clearances within all Units to satisfy ANSI requirements.
-
COMPLIANCE | Ensured architectural assemblies possessed adequate Fire, STC (sound transmission), and Shear-force ratings.
-
VERTICALITY | Modified Elevations and Sections to correspond to detailing, grading, and foundational conditions
-
DETAILING | Fabricated all architectural details for the project and a firm-wide Standards library.
MASTER PLAN
(Site Plans - Overall, Mixed-Use Area & Stage Area)


(Vicinity Map - PRIOR to Neighboring Developments)
(Vicinity Map - DURING neighboring Developments)
INSULAR SITE DESIGN
Looking at the Site Plans and vicinity maps above, that the project site is surrounded on three sides by Single-Family residential developments currently under construction. Tract G, where this project resides, is the only Multi-Family development in the master plan.
As such, the Site Plan was designed to pulling amenities and public spaces to the center of the lot and pushing the Residential structure to the perimeter, creating a barrier that acts as a sound buffer and delineation between the housing types.
Garages and trash enclosures are located along the interior Fire Lanes, keeping the noisiest culprits away from the adjacent homes and maintaining the peace. As much as possible, they were located along the length of the Fire Lanes or at entry driveways to reduce the amount of dead-end drive aisles. In turn, this reduced the amount of hammer-head turns and reversals that would be required of the driving tenants, trash trucks and fire trucks.
The Clubhouse and covered Mail kiosk are located directly in front of the primary entrance and the flanking outdoor pool is at the heart of the site. To their immediate north are the enclosed playground, Dog Park and run, and pickleball courts.
My primary contributions was ensuring that all accessible areas were located on the accessible path, including ADA garages, trash enclosures, and Type A-accessible Units.
On several occasions, this entailed coordinating and compromising on accessible locations and grading with the external Civil Engineer. Grading at Buildings A4. B1, B2 and Garage G4 had to be completely re-done to accomplish a seamless accessible path to the respective Type A units and ADA garages. The curb cuts and pedestrian pathways had to be revised as a result.
On the other hand, I had to revise the location of the ADA garage within the overall Garage's floor plan to line up with the new pedestrian walkways. In addition, I had to defend my logic to the Civil Engineer and prove that the amounts of ADA parking stall and Type A accessible Units were correct per ANSI code requirements, and that Civil grading plans would have to change in accordance. This led to the removal of non-accessible steps at several building entries in favor of smooth thresholds and the addition of more curb cuts at ADA passenger loading zones.
PLAN VIEWS
The Leasing Center and tenant clubhouse provide fully on-site amenities and management services, creating a one-stop-shop for nearly all services that a Coloradoan renter would need. Amenities include:
-
Secured Amazon/USPS/etc. parcel and package receiving area
-
Leasing Center and Maintenance office
-
Party Room / Resident Lounge
-
Lobby and Fireplace Gathering area
-
Fitness Center, Restrooms and Custodial storage
-
Dog Washing and Grooming
-
Rinse Showers, Family Restroom, and Equipment Storage for Pool & Hot Tubs
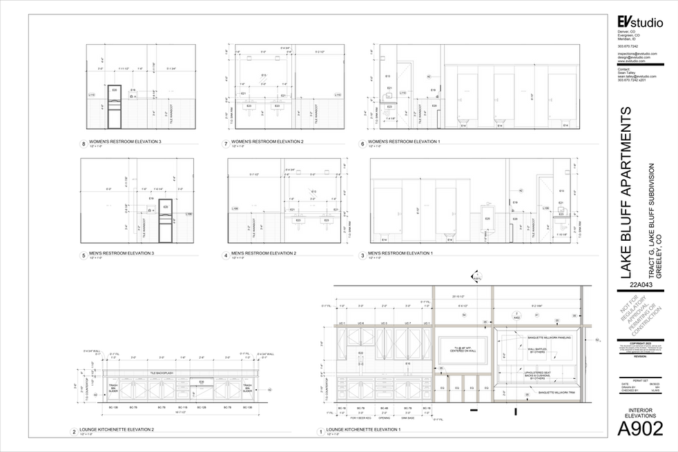
As is typical with a hearth, the Fireplace is located at the heart of the Clubhouse. Tenants will circulate past in on their way to the Fitness Center, Resident Lounge, outdoor pool, or restrooms. The Lounge provides fixed seating, a Kitchenette island, and open space for a variety of game tables.
(Detail - Wall-Hung Banquette Seating)
(Details - Fireplace & Chimney)
DETAIL VIEWS
Wooden window casings, hardwood window sills, wall battens, wood-look LVT flooring, and exposed timber beams create a cozy and rustic appearance to these premium lounge spaces.
Adjacent to the Kitchenette and above the Fireplace, the entertainment centers are complimented with fixed seating and rustic materials while opening up to the larger spaces around.
The fireplace is constructed of a stone-veneer surround and bench, a Gas fireplace insert, a fire-rated shaft up to the chimney broken up by horizontal fire-stopping, and a chimney cap with a mesh-screen to prevent nesting by birds.
(Clubhouse | Vertical Views - Building,Interior & Storefront Elevations, Building & Wall Sections, Details)
VERTICAL VIEWS
Intersecting and cascading tiers of standard Gable, Dutch Gable, and Hip roofs provide visual interest and complexity to a 3-dimensional Building form that would otherwise be ordinary. The West and East elevations—facing the primary site entry and outdoor pool, respectively—are emphasized with these projecting canopies and gabled roofs, large glazing systems, and broad elevations. Conversely, the North and South elevations are more utilitarian, allowing visibility or access into support spaces such as Package reception, Dog Washing, and Pool Storage. A stone chimney protrudes through the central ridge of the roof, marking the communal hearth its core that is visible from all angles.
Porticos underneath of projecting gables mark the primary tenant entrances into the Lobby and Package reception areas. Storefront systems are used sparingly at these public entries as a visual cue to tenants. The remainder of the fenestrations are aluminum windows and hollow metal doors.
At the Lounge and Fitness Center, sliding glass panel doors allow users to extend their activities into the courtyard—preceding the outdoor pool—when weather permits. A bank of outdoor showers and the access door to public restrooms separates the two spaces.
Public-use spaces are clearly marked by open, vaulted spaces on the exterior and interior. Private-use areas utilize standard-height volumes that are not expressed on the Exterior form to blend in. The fitness space has a series of raised tray ceilings that accommodates commercial-grade ceiling fans overhead of groups of taller fitness machinery and cardio equipment.
RESIDENTIAL BUILDING A
(Building A | Plan Views - Overall, Life Safety, RCP & Roof)
PLAN VIEWS
Building A is a R-2 residential structure—of which there are (4) on the project site—with (24) units each, totaling to (96) units. Per building, it is comprised of (12) 1-bedroom Units, (9) 2-bedroom Units, and (3) 3-bedroom Units. All entry doors to Units are specifically located to eliminate views into living spaces from other Units.
All Units are separated by acoustic- and fire-rated Demising Walls and Floors, preventing the spread of noise or fire from Unit to Unit.
All of the 1-bedroom Units are Type-B accessible and are located on the interior side of the Garden-style Apartments and egress cores. The balconies, Living rooms, and Peninsula-style Kitchens are arranged in a line along the Corridor. The full-bath restrooms have an entries from the open-end of the Kitchen and from the walk-through closet. The bedroom is located along the exterior wall furthest from the stair core.
All 2-bedroom Units are located at the outside corners of Building A. Bedrooms never share a common wall as they are separated by walk-in closets, linen closets, bathrooms, or a combination of each. All Units have a master bedroom with master bath, as well as a secondary bedroom and public bath. Nearly all bedrooms have been peeled away from the Corridor and been located on the short end of the building instead. The typical arrangement of Entry door flowing through the Peninsula-style Kitchen into the living room and to the enclosed balcony remains.
The stack of 3-bedroom Units is located at the top right corner of Building A. The 3 bedrooms are in a semi-circular position around a nucleus of laundry closets, public baths, and linen closets. All three bedrooms have a dedicated walk-in closet and (2) have direct access to a bathroom. This Unit Type has the largest Kitchen, living space, and balcony of all Unit types.
(Clubhouse | Vertical Views - Building,Interior & Storefront Elevations, Building & Wall Sections, Details)
VERTICAL VIEWS
Building A—along with Buildings B and C, the garages, and Clubhouse—was designed to be fully serviced by passive ventilation. The roof forms allow for a combination of Gable, Soffit, and ridge venting that exceeds Code requirements for Attic ventilation. I coordinated with the Mechanical Engineer on the location of dryer and exhaust vents to ensure they were minimally invasive to the Exterior Elevation design. Ultimately, they are still an eyesore that was painted to match the color tones of surrounding exterior wall finishes.
I was responsible for drafting all details for the project, some of which covered ADA-compliant balconies and door thresholds. I ensured that required slope and height of these balconies were represented in Elevation. I drafted the Building and Wall Sections that tag these details.
Heights of steel canopies above entry doors were adjusted so that they could attach directly to Rim joists at the floor line in exterior walls. All unique conditions like these are shown and tagged in Elevation.
Additionally, I designed and drafted all Stair details, plans and elevations. I took a comprehensive view at designing an accessible- and ANSI-compliant egress core that was spacious enough to permit easy moving of furniture and personal belongings. The positioning of guard rails and depths of stair landings allow large items such as couches and mattresses to be rotated and manipulated around the bend. Steel pan and concrete tread stairs were used for their noise-dampening properties, reducing the level of foot-traffic noise that is common from wood-framed stairs.
As is industry standard, nearly all exterior wall finishes transition at interior corners, hiding the messy weather-proofing and flashing connections.
A majority of these happen where exterior pilasters and wing walls return to the Thermal envelope at Exterior bearing walls. After countless reviews with the QAQC manager, pressure treated lumber and sheathing was used on areas at high-risk of water intrusion and rotting.
UNIT PLANS
(Unit Plans - Accessible Path, RCPs, & Bathroom Elevations)
UNIT PLANS
My primary contribution to the Unit Plan designs was minorly tweaking locations of walls, swinging doors, powered appliances, and plumbing fixtures to meet ANSI clearance requirements (which can be seen as dashed, red regions on the Enlarged Plans). This entailed proving that turning radii and an accessible path to fixtures and occupied spaces was possible.
At the 1A Unit Type, the challenge was providing a turning radius and door clearances at the walk-through Closet and galley-style Kitchen without reducing the usable length of shelving and base cabinets, respectively.
At the 1B.1, 1B.2, 2A, 2B, and 2C Unit types, the struggle was accommodating a turning-radius in the U-shape kitchens without growing them too wide that the bar seating at the peninsula would encroach on the usable space of the hallways or living spaces. Additionally, since many bathrooms were accessed from two rooms, providing (2) entry doors without reducing the Bathroom's usable space became tough.
At the 3A Unit type—a Type-A accessible residence—the issue became providing powered appliances at ADA reach ranges. The laundry machines had to be side-by-side Units, the microwave was altered from wall-hung to resting on the countertop, and separately-wired switching for Range Hoods were provided on the backsplash. Removable cabinetry had to be specified at Kitchens and bathrooms should an ANSI work station be needed.
See Interior Elevations with Accessibility Notes above and below.

(Cabinetry Elevations - Accessibility & Construction Notes)
SITE STRUCTURES
(Render - Ground-Level Commercial & Pedestrian Promenade)
MAIL KIOSK
This structure is located directly across from the primary site entrance, ensuring that delivery vehicles only have to stop once—the parcel and package receiving areas are located nearby—rather than driving to each Buildings' doorstep.
This covered, unconditioned receiving area has parcel boxes on 6 vertical walls and an additional nook for over-sized deliveries. The shed structure provides entries and lighting on all sides, creating a safe environment at night.
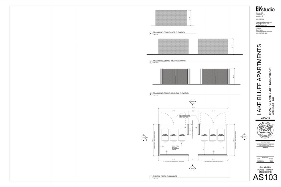
TRASH ENCLOSURES
Across the project site, there are (6) equally spaced Trash enclosures that house (6) 3-yard dumpsters each. The CMU enclosures were designed to fit this exact size of dumpster as it is the largest volume that Waste Management workers can remove from the enclosure by hand. This allows for a parallel and continuous approach by WM-vehicles.
At any larger size, the trash trucks would require a parallel approach to use their overhead loading. This would necessitate major modifications to the Fire Lane in order to fit hammer-head turning aisles. This restriction by the Site layout directly informed the design of the trash enclosures.
TYPICAL & ADA GARAGES
As the viewer can see above, the severe grade changes at Garage Door required numerous foundation and FFE steps to provide flush thresholds. These elevation changes are evident in Building Elevations and Sections. These were coordinated and re-worked with the Structural engineer multiple times as the Civil Engineer altered the grading plans at each major Design milestone. This task was at the very top of the list for biggest time sucks during the design process.
There are (4) total ADA-compliant Garage spaces required by local Zoning Ordinances. They are located along the site's accessible path, include an ANSI-compliant man door, and locate the Overhead door controls at ADA-reach ranges.














































