
1.
2
3
5
4
As a cross-discipline group project between Architecture & L.Arch students, I learned to work with designers that work at dissimilar paces and tackle issues with different angles and software than myself.
On the fringe of downtown Cleveland, our project negotiates the heights of the northern downtown towers with the urban sprawl and freeways to the South. Likewise, the sports venues to the west and Cleveland State University to the east have a constant dialogue with the Tower.
Located in the city’s performing arts district, Playhouse Square, the project must show sensitivity to all nearby performance venues and establish an impromptu space for performances of its own. Included in the program is a Charter School dedicated to theatrical education.
I was responsible for the creation of all interior spaces and the building footprint in the lowest 7 floors. I had to solve security concerns of intersecting programs that should not merge. The location of programs, general form of all structures, and intentional proximity to surroundings all originated from me. I drafted the following building plans and sections as well as the diagrams explaining all major design considerations the group made. In addition to designing the layout of the hotel tower, I generated the organization of the apartment tower circulation core and hallways, as well as the located the boundaries between apartments.

(Areas of My Contributions)
Final Review
(Review: December 10, 2020)

APARTMENT
HOTEL
CHARTER SCHOOL
COMMERCIAL SPACES
OCCUPIABLE GREEN ROOF
FIT-OUT OFFICE SPACES
PARKING
(Programmatic Divisions)

(Existing Project Site)
The project site in Cleveland presented a unique challenge—with a motley of parking lots and dilapidated, existing industrial-structures, the Project Team had to decide which buildings were historic and worthy of Salvation (pun intended, of course) and which would be leveled.
In the end, both the Salvation Army mid-rise and Harbor Light building on the north side of the site were saved. To the bottom left of the image, an unnamed and abandoned building had its façade stripped, a portion of its superstructure retained, and was reprogrammed into an open-air market. The Harbor Light building on the south side of the Salvation Army tower was repurposed as the service and cargo entry into the eventual Towers within our project. The Salvation Army was mostly kept as in—not including the top floors which were converted to luxury apartments.

HARBOR LIGHT BUILING
SALVATION ARMY
OPEN-AIR MARKET
(Existing Buildings Retained)
The project was a collaborative effort between Architecture and Landscape Architecture students. Because the architectural portion of the program was dominant and far larger than its counterpart, we had to assure that our design did not override or sabotage their landscape designs. Therefore, the largest programmatic masses (the Hotel and Apartment tower) were located at the northernmost edge of the site. There, any shadows they towers would cast would never fall on and obscure the green roofs and plaza. Their division of the work was given the space to breathe and thrive on its own. In the diagram below, the shadow on the left is caused by Morning sunlight and the shadow to the right is from the Evening.
Organizationally, this design matched the architectural density to the north of the site and replicated the horizontality and openness to the South of the project site. Our carefully curated design for the site carefully negotiates the density of downtown with the urban sprawl to the South.

(Placement of Tower Mass at the North End)

(Neighboring Green Spaces)
Located in the city’s performing arts district, Playhouse Square, the project must show sensitivity to all nearby performance venues and establish an impromptu space for performances of its own. Included in the program is a Charter School dedicated to theatrical education.
To the North are the four Theatres that comprise the Playhouse Square district. The northernmost space in the tower is cantilevered two levels above the ground plane, allowing a visual connection underneath it between Playhouse Square and the performance space at the heart of the project site.
To the East is the Wolstein Center, which functions as Cleveland State University's main venue space to host basketball games, concerts, etc.

(Adjacency to Performance Spaces)
As Cleveland State University's campus is immediately due east of the Project Site, the group thought it was wise to dedicate the lowest floors of the Apartment Tower (whose visual connection to the campus is best) to affordable units that the student population could rent. Parking for students is located both on the site and within the college campus.

(Adjacency to Cleveland State University Campus)
A mixed-use project that includes programs such as Apartment and Hotel towers, a Salvation Army, several retail stores, 500,000 s.f of Office Space, a performance venue, grocery and pharmacy, and an open-air market is destined to need ample parking spaces. Even though a 5-story parking garage is located at the southernmost point of the Site, the group felt that it is was important to analyze and show the connection to other parking spaces in the immediate few blocks.
This superfluous amount of parking spaces is beneficial in the unlikely event that our parking garage is overwhelmed and filled.

(Adjacency to Nearby Parking)

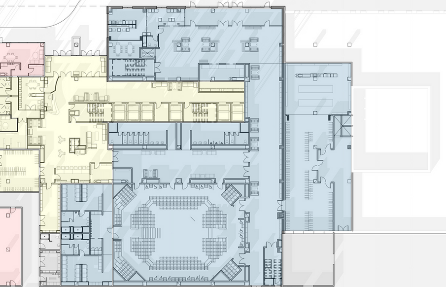
(Ground Floor - Grocery Store & Pharmacy, Corporate Entry, and Restaurant + Brewery )

(2nd Floor)


(2nd Floor - Hotel Breakfast Room + Laundry Room)


(2nd Floor - School Administration & Faculty Suite, Upper Seating, and Classrooms)

(Apartment Tower - Floors 22-38)

(Ground Floor + Site Plan)


(Ground Floor - Hotel Lobby and Plaza underneath Marquee)


(Ground Floor - Apartment Lobby and Lounge)

(Ground Floor - Charter School, Auditorium, & Service Corridor)
(3 Bedroom Apartment)

The Crescendo - Mixed-Use Highrise in Playhouse Square
5th Year Studio (12-week GROUP Project)
Cleveland, Ohio


(Locating Conduits and Services within Structure)















